Soma Bay
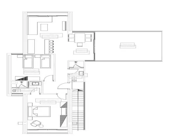
REEFTOWN – Terrassenchalet
Preis auf Anfrage
2 Schlafzimmer
2 Badezimmer
99 m²
Soma Bay
Beschreibung
REEFTOWN - Terrace Chalet in Soma Bay bietet 99 m² Wohnfläche mit 2 Schlafzimmern. Die Immobilie überzeugt mit funktionaler Aufteilung, solider Bauqualität und einer Lage mit kurzen Wegen im Alltag.
Ausstattung
Möbliert
Air Conditioner
Gated
Terrace
